


棒銷聯軸器的適用范圍適用于聯接兩同軸線的傳動軸系,具有   的補償兩軸相對偏移和一般減震性能。工作環境溫度為-20º~+70ºC.不適用于對減震效果要求很高和對噪音需要控制的部位。
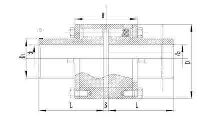
| BL型彈性棒銷齒式聯軸器基本參數和主要尺寸 mm | 
| 
             型號 
             | 
            
             公稱扭矩 
            N.m 
             | 
            
             許用 
            轉速 
            rpm 
             | 
            
             孔徑直徑mm 
            d1、d2 
             | 
            
             軸孔長度mm 
             | 
            
             D 
             | 
            
             S 
             | 
            
              B 
             | 
            
             許用補償量 
             | 
            
             轉動 
            慣量 
            N.m2 
             | 
                      質量kg  | 
        |||||||
| 
             Y型 
             | 
            
             J1型 
             | 
            
             軸向 
             | 
            
             徑向 
             | 
            
             角向 
             | 
        |||||||||||||
| 
             L 
             | 
            
             L 
             | 
            
             mm 
             | 
            
             (º) 
             | 
        ||||||||||||||
| 
             BL1 
             | 
            
             610 
             | 
            
             3800 
             | 
            
             25,28 
             | 
            
             55 
             | 
            
             65 
             | 
            
             145 
             | 
            
             5 
             | 
            
             66 
             | 
            
             ±1.5 
             | 
            
             0.2 
             | 
            
             0º30¹ 
             | 
            
             0.882 
             | 
            
             11 
             | 
        ||||
| 
             30,32,35,38 
             | 
            
             60 
             | 
            
             80 
             | 
        |||||||||||||||
| 
             40,42,45,48 
             | 
            
             70 
             | 
            
             110 
             | 
        |||||||||||||||
| 
             BL2 
             | 
            
             1500 
             | 
            
             3000 
             | 
            
             40,42,45,48,50,55 
             | 
            
             70-110 
             | 
            
             110 
             | 
            
             165 
             | 
            
             5 
             | 
            
             76 
             | 
            
             ±1.5 
             | 
            
             0.2 
             | 
            
             0º30¹ 
             | 
            
             1.96 
             | 
            
             18 
             | 
        ||||
| 
             60 
             | 
            
             110-140 
             | 
            
             140 
             | 
        |||||||||||||||
| 
             BL3 
             | 
            
             3920 
             | 
            
             2400 
             | 
            
             50,55 
             | 
            
             70-110 
             | 
            
             110 
             | 
            
             190 
             | 
            
             5 
             | 
            
             86 
             | 
            
             ±1.5 
             | 
            
             0.3 
             | 
            
             0º30¹ 
             | 
            
             4.312 
             | 
            
             30 
             | 
        ||||
| 
             60,65,70,75 
             | 
            
             110-140 
             | 
            
             140 
             | 
        |||||||||||||||
| 
             80 
             | 
            
             125-170 
             | 
            
             170 
             | 
        |||||||||||||||
| 
             BL4 
             | 
            
             6174 
             | 
            
             2000 
             | 
            
             60,65,70,75 
             | 
            
             110-140 
             | 
            
             140 
             | 
            
             230 
             | 
            
             5 
             | 
            
             106 
             | 
            
             ±1.5 
             | 
            
             0.3 
             | 
            
             0º30¹ 
             | 
            
             9.702 
             | 
            
             42 
             | 
        ||||
| 
             80,85,90 
             | 
            
             125-170 
             | 
            
             170 
             | 
        |||||||||||||||
| 
             BL5 
             | 
            
             9800 
             | 
            
             1680 
             | 
            
             70,75 
             | 
            
             110-140 
             | 
            
             140 
             | 
            
             270 
             | 
            
             5 
             | 
            
             116 
             | 
            
             ±1.5 
             | 
            
             0.4 
             | 
            
             0º30¹ 
             | 
            
             23.52 
             | 
            
             81 
             | 
        ||||
| 
             80,85,90,95 
             | 
            
             110-200 
             | 
            
             180 
             | 
        |||||||||||||||
| 
             100,110,120 
             | 
            
             172 
             | 
            
             210 
             | 
        |||||||||||||||
| 
             BL6 
             | 
            
             15680 
             | 
            
             1500 
             | 
            
             80,85,90,95 
             | 
            
             120-170 
             | 
            
             170 
             | 
            
             290 
             | 
            
             10 
             | 
            
             127 
             | 
            
             ±2.5 
             | 
            
             0.4 
             | 
            
             0º30¹ 
             | 
            
             31.36 
             | 
            
             101 
             | 
        ||||
| 
             100,110,120 
             | 
            
             160-210 
             | 
            
             210 
             | 
        |||||||||||||||
| 
             130 
             | 
            
             200-250 
             | 
            
             250 
             | 
        |||||||||||||||
| 
             BL7 
             | 
            
             24500 
             | 
            
             1270 
             | 
            
             90、95 
             | 
            
             140-170 
             | 
            
             170 
             | 
            
             350 
             | 
            
             10 
             | 
            
             147 
             | 
            
             ±2.5 
             | 
            
             0.4 
             | 
            
             0º30¹ 
             | 
            
             79.38 
             | 
            
             151 
             | 
        ||||
| 
             100,110,120 
             | 
            
             160-210 
             | 
            
             210 
             | 
        |||||||||||||||
| 
             130,140,150 
             | 
            
             200-250 
             | 
            
             250 
             | 
        |||||||||||||||
| 
             BL8 
             | 
            
             30870 
             | 
            
             1140 
             | 
            
             100,110,120 
             | 
            
             160-210 
             | 
            
             210 
             | 
            
             370 
             | 
            
             10 
             | 
            
             167 
             | 
            
             ±2.5 
             | 
            
             0.6 
             | 
            
             0º30¹ 
             | 
            
             123.52 
             | 
            
             206 
             | 
        ||||
| 
             130,140,150 
             | 
            
             200-250 
             | 
            
             250 
             | 
        |||||||||||||||
| 
             160,170 
             | 
            
             240-300 
             | 
            
             300 
             | 
        |||||||||||||||
| 
             BL9 
             | 
            
             39200 
             | 
            
             1000 
             | 
            
             110,120 
             | 
            
             160-210 
             | 
            
             210 
             | 
            
             400 
             | 
            
             10 
             | 
            
             167 
             | 
            
             ±2.5 
             | 
            
             0.6 
             | 
            
             0º30¹ 
             | 
            
             175.42 
             | 
            
             290 
             | 
        ||||
| 
             130,140,150 
             | 
            
             200-250 
             | 
            
             250 
             | 
        |||||||||||||||
| 
             160,170,180 
             | 
            
             240-300 
             | 
            
             300 
             | 
        |||||||||||||||
| 
             BL10 
             | 
            
             61740 
             | 
            
             850 
             | 
            
             130,140,150 
             | 
            
             200-250 
             | 
            
             250 
             | 
            
             470 
             | 
            
             10 
             | 
            
             177 
             | 
            
             ±2.5 
             | 
            
             0.6 
             | 
            
             0º30¹ 
             | 
            
             343 
             | 
            
             377 
             | 
        ||||
| 
             160,170,180 
             | 
            
             240-300 
             | 
            
             300 
             | 
        |||||||||||||||
| 
             190,200,210 
             | 
            
             280-350 
             | 
            
             350 
             | 
        |||||||||||||||
| 
             BL11 
             | 
            
             98000 
             | 
            
             750 
             | 
            
             150 
             | 
            
             200-250 
             | 
            
             250 
             | 
            
             520 
             | 
            
             10 
             | 
            
             201 
             | 
            
             ±2.5 
             | 
            
             0.8 
             | 
            
             0º30¹ 
             | 
            
             597.8 
             | 
            
             520 
             | 
        ||||
| 
             160,170,180 
             | 
            
             240-300 
             | 
            
             300 
             | 
        |||||||||||||||
| 
             190,200,210,220,230, 
            240,250 
             | 
            
             280-350 
             | 
            
             350 
             | 
        |||||||||||||||
| 
             BL12 
             | 
            
             122500 
             | 
            
             660 
             | 
            
             170,180 
             | 
            
             240-300 
             | 
            
             300 
             | 
            
             560 
             | 
            
             10 
             | 
            
             231 
             | 
            
             ±2.5 
             | 
            
             0.8 
             | 
            
             0º30¹ 
             | 
            
             989.8 
             | 
            
             660 
             | 
        ||||
| 
             190,200,210,220,230, 
            240,250 
             | 
            
             280-350 
             | 
            
             350 
             | 
        |||||||||||||||
| 
             260,270,280 
             | 
            
             320-420 
             | 
            
             - 
             | 
        |||||||||||||||
| 
             BL13 
             | 
            
             155800 
             | 
            
             600 
             | 
            
             190,200,210,220,230, 
            240,250 
             | 
            
             280-350 
             | 
            
             350 
             | 
            
             630 
             | 
            
             10 
             | 
            
             261 
             | 
            
             ±2.5 
             | 
            
             1.0 
             | 
            
             0º30¹ 
             | 
            
             1630.6 
             | 
            
             876 
             | 
        ||||
| 
             260,270,280,290,300 
             | 
            
             320-420 
             | 
            
             - 
             | 
        |||||||||||||||
| 
             BL14 
             | 
            
             245000 
             | 
            
             540 
             | 
            
             210,220,230,240,250 
            260,270 
             | 
            
             280-350 
             | 
            
             350 
             | 
            
             690 
             | 
            
             10 
             | 
            
             285 
             | 
            
             ±2.5 
             | 
            
             1.0 
             | 
            
             0º30¹ 
             | 
            
             2675.4 
             | 
            
             1124 
             | 
        ||||
| 
             280,290,300,310,320,330,340 
             | 
            
             350-420 
             | 
            
             - 
             | 
        |||||||||||||||
| 
             BL15 
             | 
            
             308700 
             | 
            
             480 
             | 
            
             230,240,250,260,270 
            280,290,300 
             | 
            
             320-350 
             | 
            
             - 
             | 
            
             750 
             | 
            
             10 
             | 
            
             315 
             | 
            
             ±2.5 
             | 
            
             1.2 
             | 
            
             0º30¹ 
             | 
            
             4410 
             | 
            
             1830 
             | 
        ||||
| 
             310,320,330,340 
            350,360,370,380 
             | 
            
             420-480 
             | 
        ||||||||||||||||
| 
             BL16 
             | 
            
             392000 
             | 
            
             425 
             | 
            
             250,260,270,280,290,300,310,320,330,340 
             | 
            
             350-400 
             | 
            
             - 
             | 
            
             850 
             | 
            
             15 
             | 
            
             345 
             | 
            
             ±5 
             | 
            
             1.2 
             | 
            
             0º30¹ 
             | 
            
             7408.8 
             | 
            
             2370 
             | 
        ||||
| 
             350,360,370,380 
            390,400,410,420 
             | 
            
             420-480 
             | 
        ||||||||||||||||
| 
             BL17 
             | 
            
             617400 
             | 
            
             380 
             | 
            
             280,290,300,310,320 
            330,340,350,360,370 
            380,390,400 
             | 
            
             400-450 
             | 
            
             - 
             | 
            
             930 
             | 
            
             15 
             | 
            
             369 
             | 
            
             ±5 
             | 
            
             1.5 
             | 
            
             0º30¹ 
             | 
            
             12475.4 
             | 
            
             3350 
             | 
        ||||
| 
             410,420,430,440,450 
            460,470,480 
             | 
            
             480-560 
             | 
        ||||||||||||||||
| 
             BL18 
             | 
            
             980000 
             | 
            
             330 
             | 
            
             300,310,320,330,340 
            350,360,370,380,390 
            400 
             | 
            
             450-480 
             | 
            
             - 
             | 
            
             1000 
             | 
            
             15 
             | 
            
             389 
             | 
            
             ±5 
             | 
            
             1.5 
             | 
            
             0º30¹ 
             | 
            
             20139 
             | 
            
             4077 
             | 
        ||||
| 
             410,420,430,440,450 
            460,470,480,490,500 
            580 
             | 
            
             530-560 
             | 
        ||||||||||||||||
| 
             BL19 
             | 
            
             1568000 
             | 
            
             300 
             | 
            
             350,360,370,380,390 
            400,410,420,430,440 
             | 
            
             480-560 
             | 
            
             - 
             | 
            
             1110 
             | 
            
             15 
             | 
            
             409 
             | 
            
             ±5 
             | 
            
             1.5 
             | 
            
             0º30¹ 
             | 
            
             40062.4 
             | 
            
             5690 
             | 
        ||||
| 
             450,460,470,480,490 
            500,530,560,600 
             | 
            
             600-650 
             | 
        ||||||||||||||||